p1240391_fly_9951.jpg
Northern access to Seville. Pago Enmedio Viaduct in La Rinconada
Seville, Spain
Structural typology Road & Highway Bridges
Date October, 2024
Scope Detailed design
Design Fhecor
Owner Junta de Andalucia
The Pago de Enmedio Viaduct will extend the actual northern access roadway between La Rinconada and Seville. The Viaduct is really a pair of twin bridges, 590 m and 178 m long. The bridge design has been influenced by the future urban development planned in the future bridge location. This has led to a proposal where the following factors have influenced the final proposal: seek of transparency from underneath, bridge integration in the urban development, visual and noise impact minimization, and budget constraints.


The Pago de Enmedio Viaduct in La Rinconada is the result of a previous alternatives analysis that has taken into account the following factors:
- Sense of transparency and permeability from underneath.
- Integration in the future urban grid.
- Maintaining visual and noise impact as low as possible.
- Budget constraints.

The following measured has been adopted in order to favour the bridge integration in the urban area:
- The viaducts are formed by two independent decks, separated by the central median space to allow for light reaching the areas underneath.
- All the structural share a common language regarding forms. Piers have a characteristic shape, are easy to build and are light to provide for free space under the bridge.
Pro
- Use of massive elements in walls and abutments has been avoided. Abutments have been placed far from the streetway to have free spaces in these areas. Earth fill between viaducts has been designed with a terrace shape to improve its integration in the area, especially in the lower parts of the embankment.
- Bridge barrier, light poles and acoustic barrier have been designed trying to have an global and coherent solution.

In urban bridges design formal aspects are more relevant than in a typical bride design. In this regard, the proposal has tried to be aesthetically pleasant, maintaining the logical expression of the selected structural type. These premises led to a constant height, continuous, postensioned concrete deck as the preferred solution to span over the future urban development.

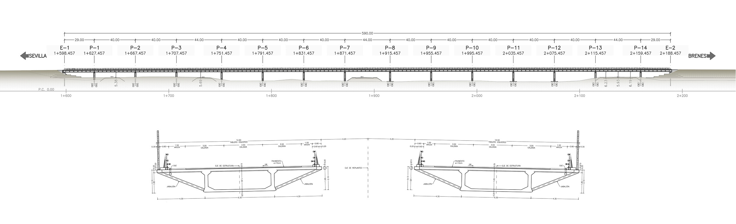
The viaduct over the northern roundabout will be 178 m long, with a constant width of 12,40 m. The southern and main viaduct length will be 590 m, with fifteen spans, a typical span of 40 m and a maximum span length of 44 m. This viaduct deck has a variable width to allow for enough space for the approach and departure legs to access La Rinconada and the traffic towards Seville coming from La Rinconada.

The typical cross section is 12,40 m and allows for a road section with two 3.50 m lanes, an external shoulder 2.50 m wide, an inner shoulder of 1.50 m, 0.80 m for each barrier, and an outer 0.30 m strip for the acoustic barrier. The deck structural type is a postensioned concrete beam, composed of a central in situ concrete box girder and a series of precast concrete strut elements to support the slab overhangs.
The central in situ box girder width varies in order to compensate for the global deck width variation, allowing for a precast element constant geometry in most of the bridge.

The central box girder typical width is 3,80 m. The maximum box girder width is 8.60 m, in the point where overall width has increased from the typical 12,40 m to the maximum of 17.25 m. Deck height is constant and equal to 2,10 m. The span / length ratio is 1/19 in the longest span. The top slab and the struts are 25 cm thick. The lower slab is 20 cm thick. Wens typical thickness is 30 cm, excepting areas where an increased thickness is needed to place postensioning cables couplers.

Piers have been designed with a rhomboidal cross section, and two shafts per line of support. The transverse distance between shafts varies as per deck width variation. Piers have been designed with constant height to allow for ease of precasting in case it is desired. Pier foundations are formed by 120 diameter piles, entering the marl stratus and with a length varying between 24.0 m and 28.0 m. Abutmes are supported by piles too, their lengths ranging from 30 to 35 m.
The Pago de Enmedio Viaduct will extend the actual northern access roadway between La Rinconada and Seville. The Viaduct is really a pair of twin bridges, 590 m and 178 m long. The bridge design has been influenced by the future urban development planned in the future bridge location. This has led to a proposal where the following factors have influenced the final proposal: seek of transparency from underneath, bridge integration in the urban development, visual and noise impact minimization, and budget constraints.


The Pago de Enmedio Viaduct in La Rinconada is the result of a previous alternatives analysis that has taken into account the following factors:
- Sense of transparency and permeability from underneath.
- Integration in the future urban grid.
- Maintaining visual and noise impact as low as possible.
- Budget constraints.

The following measured has been adopted in order to favour the bridge integration in the urban area:
- The viaducts are formed by two independent decks, separated by the central median space to allow for light reaching the areas underneath.
- All the structural share a common language regarding forms. Piers have a characteristic shape, are easy to build and are light to provide for free space under the bridge.
- Use of massive elements in walls and abutments has been avoided. Abutments have been placed far from the streetway to have free spaces in these areas. Earth fill between viaducts has been designed with a terrace shape to improve its integration in the area, especially in the lower parts of the embankment.
- Bridge barrier, light poles and acoustic barrier have been designed trying to have an global and coherent solution.

In urban bridges design formal aspects are more relevant than in a typical bride design. In this regard, the proposal has tried to be aesthetically pleasant, maintaining the logical expression of the selected structural type. These premises led to a constant height, continuous, postensioned concrete deck as the preferred solution to span over the future urban development.
The viaduct over the northern roundabout will be 178 m long, with a constant width of 12,40 m. The southern and main viaduct length will be 590 m, with fifteen spans, a typical span of 40 m and a maximum span length of 44 m. This viaduct deck has a variable width to allow for enough space for the approach and departure legs to access La Rinconada and the traffic towards Seville coming from La Rinconada.

The typical cross section is 12,40 m and allows for a road section with two 3.50 m lanes, an external shoulder 2.50 m wide, an inner shoulder of 1.50 m, 0.80 m for each barrier, and an outer 0.30 m strip for the acoustic barrier. The deck structural type is a postensioned concrete beam, composed of a central in situ concrete box girder and a series of precast concrete strut elements to support the slab overhangs.

The central in situ box girder width varies in order to compensate for the global deck width variation, allowing for a precast element constant geometry in most of the bridge.

The central box girder typical width is 3,80 m. The maximum box girder width is 8.60 m, in the point where overall width has increased from the typical 12,40 m to the maximum of 17.25 m. Deck height is constant and equal to 2,10 m. The span / length ratio is 1/19 in the longest span. The top slab and the struts are 25 cm thick. The lower slab is 20 cm thick. Wens typical thickness is 30 cm, excepting areas where an increased thickness is needed to place postensioning cables couplers.

Piers have been designed with a rhomboidal cross section, and two shafts per line of support. The transverse distance between shafts varies as per deck width variation. Piers have been designed with constant height to allow for ease of precasting in case it is desired. Pier foundations are formed by 120 diameter piles, entering the marl stratus and with a length varying between 24.0 m and 28.0 m. Abutmes are supported by piles too, their lengths ranging from 30 to 35 m.
Northern access to Seville. Pago Enmedio Viaduct in La Rinconada
Seville, Spain
Structural typology Road & Highway Bridges
Date October, 2024
Scope Detailed design
Design fhecor
Owner Junta de Andalucia
The Pago de Enmedio Viaduct will extend the actual northern access roadway between La Rinconada and Seville. The Viaduct is really a pair of twin bridges, 590 m and 178 m long. The bridge design has been influenced by the future urban development planned in the future bridge location. This has led to a proposal where the following factors have influenced the final proposal: seek of transparency from underneath, bridge integration in the urban development, visual and noise impact minimization, and budget constraints.


The Pago de Enmedio Viaduct in La Rinconada is the result of a previous alternatives analysis that has taken into account the following factors:
- Sense of transparency and permeability from underneath.
- Integration in the future urban grid.
- Maintaining visual and noise impact as low as possible.
- Budget constraints.

The following measured has been adopted in order to favour the bridge integration in the urban area:
- The viaducts are formed by two independent decks, separated by the central median space to allow for light reaching the areas underneath.
- All the structural share a common language regarding forms. Piers have a characteristic shape, are easy to build and are light to provide for free space under the bridge.
- Use of massive elements in walls and abutments has been avoided. Abutments have been placed far from the streetway to have free spaces in these areas. Earth fill between viaducts has been designed with a terrace shape to improve its integration in the area, especially in the lower parts of the embankment.
- Bridge barrier, light poles and acoustic barrier have been designed trying to have an global and coherent solution.

In urban bridges design formal aspects are more relevant than in a typical bride design. In this regard, the proposal has tried to be aesthetically pleasant, maintaining the logical expression of the selected structural type. These premises led to a constant height, continuous, postensioned concrete deck as the preferred solution to span over the future urban development.

The viaduct over the northern roundabout will be 178 m long, with a constant width of 12,40 m. The southern and main viaduct length will be 590 m, with fifteen spans, a typical span of 40 m and a maximum span length of 44 m. This viaduct deck has a variable width to allow for enough space for the approach and departure legs to access La Rinconada and the traffic towards Seville coming from La Rinconada.

The typical cross section is 12,40 m and allows for a road section with two 3.50 m lanes, an external shoulder 2.50 m wide, an inner shoulder of 1.50 m, 0.80 m for each barrier, and an outer 0.30 m strip for the acoustic barrier. The deck structural type is a postensioned concrete beam, composed of a central in situ concrete box girder and a series of precast concrete strut elements to support the slab overhangs.

The central in situ box girder width varies in order to compensate for the global deck width variation, allowing for a precast element constant geometry in most of the bridge.

The central box girder typical width is 3,80 m. The maximum box girder width is 8.60 m, in the point where overall width has increased from the typical 12,40 m to the maximum of 17.25 m. Deck height is constant and equal to 2,10 m. The span / length ratio is 1/19 in the longest span. The top slab and the struts are 25 cm thick. The lower slab is 20 cm thick. Wens typical thickness is 30 cm, excepting areas where an increased thickness is needed to place postensioning cables couplers.

Piers have been designed with a rhomboidal cross section, and two shafts per line of support. The transverse distance between shafts varies as per deck width variation. Piers have been designed with constant height to allow for ease of precasting in case it is desired. Pier foundations are formed by 120 diameter piles, entering the marl stratus and with a length varying between 24.0 m and 28.0 m. Abutmes are supported by piles too, their lengths ranging from 30 to 35 m.
p1240409_fly_9952.jpg
compo_1_9959.jpg
img20241007175614_fly_9954.jpg
compo_2_9960.jpg
p1240392_fly_9956.jpg
p1240395_fly_9957.jpg
img20241007181007_fly_9961.jpg
p1240383_fly_9962.jpg
web_1_8926.jpg
alzado_nocturno_9963.jpg
compo1_2024_9964.jpg
compo2_2024_9965.jpg
compo3_2024_9966.jpg
04_9967.jpg
01_9968.jpg
02_9969.jpg
location
Related projects