road & highway
road & highway
Loading...
img_5942_grande_fly_8823.jpg
Conservative restoration of the Musmeci Bridge

Potenza, Italia

web_9794.jpg
RoadT15 Dubréka-Kouria

Conakry, Guinea

web_9213.jpg
Martorell Interchange

Barcelona, España

395-01-I395-Alert-03119025 fly_10702.jpg
Signature bridge

Miami, EEUU

IMG20260127162226_fly_10872.jpg
Rehabilitation and Widening of the Bridge over the Guadalquivir River

Villa del Río, España

BURIANO_alzado con escollera con IA_10826.jpg
New Buriano Bridge

Buriano, Italia

20240220_fly_10024.jpg
Centenario Bridge repair and extensión

Sevilla, España

portada web_10599.jpg
Gordie Howe International Bridge over Detroit River

Detroit (EEUU) - Windsor (Canada)

jsc_pont_des_piles_quebec_9819.jpg
Pont des Piles construction sequence

Shawinigan, Quebec, Canada

web_8_10080.jpg
New Pattullo Bridge

Surrey-New Westminster, BC, Canadá

planos_con_sombras_9416.jpg
M-50 AND M-509 HIGHWAYS link

Madrid, España

nuevo_paseo_a_10217.jpg
Bridge over river Guadalete

El Puerto de Santa María, España

p1240391_fly_9951.jpg
Northern access to Seville. Pago Enmedio Viaduct in La Rinconada

Sevilla, España

web_1_9013.jpg
Retrofit and widening design of the bridge over Virilla river

San José y Heredia, Costa Rica

peatonal_10210.png
Bridge over river Cedrino

Orosei, Italia

iv_9806.jpg
LZ-703 road protection bridge

Los Hervideros, Lanzarote, España

web_9111.jpg
Viaducts over river Duero on A-11 highway

Aranda de Duero, Burgos. España

221007_viaducto_yalquincha1_alzado_9075.jpg
Yalquincha Viaduct

Calama, Chile

llegada_pasarela_9614.jpg
New bridge over Torrente Pora

Finale Ligure, Italia

hacia_sevilla__b4_arco_celosia_sin_9102.jpg
Bridge over river Guadalquivir, SE-40 highway

Sevilla, España

00_9237.jpg
New bridge over Piave River

Belluno, Italia

01b_propuesta_2__chapas_5mm_cada_10cm_9657.jpg
Bridge over Castilla canal

Naveros de Pisuerga, España

img_20181025_110828_255_fly_8511.jpg
North Tarrant Expressway: IH-30 direct connector

Fort Worth, Texas, EEUU

04_8752.jpg
Bridge over Jerte river

Cabezuela del Valle, España

img_20211221_120100_8798.jpg
Bridges over Guadalmedina River to connect the service areas of the Port of Málaga

Málaga, España

img20221022wa0029_fly_9112.jpg
Bridge over Wawa river

Nicaragua

03_glorieta_fase_2_9757.jpg
Inner Ring Road

Kumasi, Ghana

web_8685.jpg
Loiola Viaduct Rehabilitation

San Sebastián, España

03_desde_agua_9407.jpg
Ricobayo arch bridge extensión

Zamora, España

nuevo_formato_ficha_dossierfly_2023_9921.jpg
Bridge Route des Pêches

Porto Novo, Benin

fotomontaje_9779.jpg
3 extradosed bridges

Tamale, Ghana

compo_1_8949.jpg
SH99 Grand Parkway - Tramos I-1B and I-2

Houston, Texas, EEUU

img20221117wa0005_9130.jpg
SH99 Grand Parkway, segments I-1A

Houston, Texas, EEUU

fhs_en_la_web2_9974.jpg
North Tarrant Expressway: I-820 / IH-35W Mark IV Interchange

Fort Worth, Texas, EEUU

fondo_web_ok_8526.jpg
South East Connector

Fort Worth, Texas, EEUU

01_8702.jpg
Orona bridge over Urumea river at Epele Industrial State

San Sebastian, España

aquarela_8828.jpg
Bridge over Birs river

Laufen, Suiza

fondo_web_ok_copia_9918.jpg
Briddges over Yewa river lagoon

Porto Novo, Benin

fotomontaje_i_centro_spree_10060.jpg
Mühlendamm bridge tender design

Berlin, Alemania

image_1_large_8268.jpg
Montevideo Harbor Arch Bridge

Montevido, Uruguay

loadtest_nov203_web_8304.jpg
Phase 1 - Viaduct over the Obetsebi Lamptey Interchange

Acra, Ghana

rn32_web_6069.jpg
Saprissa Bridge over Virilla River in RN32

San Jose, Costa Rica

croquis_web_8024.jpg
Hauterive Bridge

Friburgo, Suiza

img20200619wa0120_9092.jpg
Rehabilitation of river Jándula bridge

Andújar. Jaén

portada_2024_10019.jpg
Cebu-Cordova Link Expressway

Cebú, Filipinas

bratislava_2_9183.jpg
D4 Motorway and R7 Expressway Project

Bratislava, Eslovaquia

dscn0931_fly_7603.jpg
Jamal Abdul Naseer Street Viaduct

Kuwait City, Kuwait

nbsldesignnpsl01_web_6068.jpg
New Champlain Bridge over St Lawrence river

Montreal, Canadá

lindora_00d_5750.jpg
Bridge over Virilla River in RN147

San José, Costa Rica

04_aerea_3_9748.jpg
Patte d-Oie Interchange

Dakar, Senegal

gdb_2_5281.jpg
Gerald Desmond Bridge Replacement Project

Long Beach, Los Angeles, EEUU

puente_terminado_02_5873.jpg
Fernando Reig Bridge refurbishment

Alcoy, España

fotomontaje_desde_hotel_8833.jpg
Viveiro Bay Bridge

Ría de Viveiro, España

render_2_5970.jpg
Dvorecký Bridge

Praga, República Checa

4_5_6013.jpg
Bridge over Danube River

Budapest, Hungría

portada_2024_10017.jpg
Rande Bridge widening

Vigo, España

web_1_9753.jpg
RN11 Bridges & Road: Bolgatanga-Bawku-Pulmakom

Bolgatanga, Ghana

alcantara_3_6660.jpg
New bridge over River Tagus

Alcántara, España

portada_2024_10018.jpg
Mersey Gateway Bridge

Runcorn – Liverpool, Reino Unido

compo_web_7327.jpg
Refurbishment RN1. North Interamerican Highway

Barranca y Limonal, Costa Rica

compo_7184.jpg
Avda. Madame Lynch and Avda. Aviadores del Chaco three level interchange

Asunción, Paraguay

aerea_6071.jpg
Bridge over Torola River

San Antonio del Mosco, El Salvador

dsc_1138jpg_7323.jpg
Kasoa Interchange

Acra, Ghana

web_8514.jpg
North Tarrant Expressway: segment 3C

Fort Worth, Texas, EEUU

11_web_9934.jpg
Astmoor Bridgewater viaduct

Daresbury

img_9725_fly_7170.jpg
Dr. Kwame Nkrumah Interchange

Acra, Ghana

161124_pasarela_con_cubierta_02_8371.jpg
Fahaheel Expressway viaducts

Kuwait

compo_7168.jpg
South West Calgary Ring Road

Calgary, AL, Canada

01_8360.jpg
Bridge over river LLobregat

Cabrianes, Barcelona, España

liberte6_07_salidatunel_c2_9745.jpg
Liberté 6 Interchange

Dakar, Senegal

alzado_10373.jpg
Rehabilitation of the Iron Bridge over the Guadlaquivir river

Villa del Río, España

fondo_web_ok_8527.jpg
State Highway 288 Toll Lanes in Harris County

Harris County, Texas, EEUU

151109_main_bridge_canal_de_canoas_1_6343.jpg
Bridge over the River Danube

Bratislava, Eslovaquia

compo_7150.jpg
Highway Project "Mar 2"

Chigorodó-Cañasgordas, Colombia

web_9894.jpg
Jamal Abdul Naseer Street Project. Roundabout Bridges T2.1 & T2.2

Kuwait City, Kuwait

02_c1_500_fly_7536.jpg
M4 River Usk Crossing Bridge

Newport, Gales, Reino Unido

eyelevel_creative_limited_2_7542.jpg
Northern Spire Bridge over River Wear

Sunderland, Reino Unido

compo_7153.jpg
Tollway concession Pacifico 1

Bolomboló-Camiloce, Colombia

compo_7147.jpg
Tollway concession Pacifico 3

La Virginia-La Pintada, Colombia

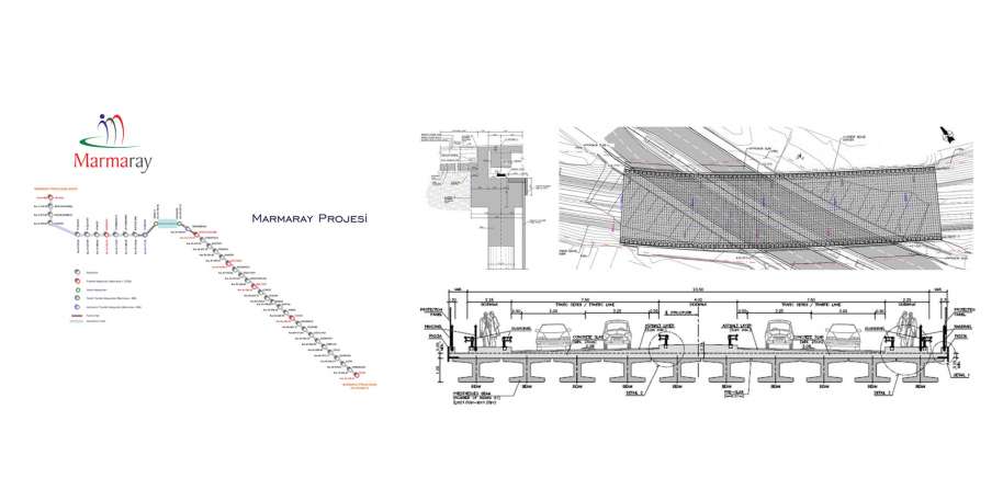
nuevo_formato_ficha_dossierfly_7628.jpg
Marmaray CR3. Overpasses

Estambul, Turquía

fly_0_7376.jpg
Third Tagus River crossing

Lisboa, Portugal

gp1_5263.jpg
Viaducts for the General Paz Avenue in Buenos Aires

Buenos Aires

pixabay_free_to_use_7500.jpg
New Europe Bridge over the Danube

Vidin (Bulgaria) - Calafat (Rumania)

arnold_reinhold_7623.jpg
Bayonne Bridge raising

Nueva York, EEUU

img_4913_fly_6820.jpg
Bridge over the Beauharnois Canal

Montreal, Canada

captura_de_pantalla_20240905_111340_9798.jpg
Seguela-Mankono road rehabilitation. Bridge over river Kouhoue

Seguela-Mankono, Costa de Marfil

pencil_brasil_41_fly_7794.jpg
Restoration of the Pênsil Bridge

São Vicente, São Paulo, Brasil

1_7211.jpg
Rialbo River bridge repair project

Campo, Huesca, España

portada_7209.jpg
Veral River Bridge repair project

Limite provincial entre Zaragoza y Huesca, España

aerea_final_puentejpg_7910.jpg
Northbound approach to the Centenario Bridge

Paraíso, Pánama

barranco_del_muerto_tenerife_fly_8204.jpg
Viaduct over the "Barranco del Muerto"

Santa Cruz de Tenerife, Islas Canarias

lerez_monteporreiro_i_fly_7225.jpg
Bridge over River Lérez

Pontevedra, España

ydraycorredorviabrasiltramo1panama_vistaaerea8_fly_8178.jpg
Simon Bolivar and Ricardo Alfaro Viaducts, Corredor Via Brasil, Section 1

Pánama

cuatro_vientos_pamplona5_7498.jpg
Cuatro Vientos Bridge

Pamplona, España

f1_1785.jpg
Bridge over the Dambovita River

Bucarest, Rumania

variante_sur_metropolitano_bilbao_1_fly_7890.jpg
Bridges (2B y 3A) for the South Metropolitan Highway Bypass. Bilbao

Vizkaya, España

dscn3237_fly_6741.jpg
Bridge over Picassent Ravine

Picassent, Valencia, España

dsc06486_fly_7356.jpg
Centura Bridge

Circunvalación Norte de Bucarest, Rumania

atirantado2_7354.jpg
Noia Viaduct

Noia, A Coruña, España

_mg_2223panoramica_fly_7349.jpg
Engano Viaduct

Ensenada de Engano, Noia, A Coruña, España

23012019manzanal_fly1_6733.jpg
New Manzanal del Barco Bridge

Embalse de Ricobayo, Zamora, España

portada_6829.jpg
Bridge over the Tajuña River

Autovía De La Alcarria (A28), Guadalajara, España

montoro_01_5811.jpg
Bridge over the river Guadalquivir

Montoro, España

sl731993_fly2_7371.jpg
Arbizelai Viaduct

Mondragón, Guipúzcoa, España

04basa_foto_lateral_web_7682.jpg
Basagoiti Viaducts

Arechavaleta, Guipúzcoa, España

01_5514.jpg
Widening of Los Santos Bridge

Ria del Eo entre Galicia y Asturias, España

imagen1e_7190.jpg
Ponteceso Bridge restoration

Ponteceso, Galicia, España

newark_bay_bridge_north_bayonne_park_jeh_fly_7601.jpg
Delaware River Turnpike Bridge

Pensilvania - Nueva Jersey, EEUU

fly_7228.jpg
Repair Project for the Isle of Arosa Bridge

Pontevedra, España

f1_4945.jpg
Structures on the north ring road in Valencia

Valencia

037_fly_7423.jpg
Genil river Bridge

Granada, España

042_fly_6738.jpg
Bridge over Rambla del Cura

Roquetas de Mar, Almería, España

web_7118.jpg
North Vespucio Motorway

Santiago, Chile

compo_7117.jpg
Central Motorway

Santiago, Chile

nora_2_44_5257.jpg
Viaduct over the Nora River

Asturias, España

by_pass_e6_7338.jpg
Cable Stayed Bridge over Valencia By-Pass

Torrente, España

compo1_7905.jpg
Bridges on Orense-Santiago highway

Alto de Santo Domingo, Orense, España

img_3469con_vigneting_6616.jpg
Bridge over the Najerilla river

Nájera, La Rioja, España

f1_1229.jpg
Los Dominicos bridge over the N-I motorway

Madrid

compo_7233.jpg
River Oria Bridge repair project

Itsasondo-Arama, Guipúzcoa, España

f1_1083.jpg
Composite structures over the A-1 motorway

p_d_005_copy_7908.jpg
Bridge over river Miño

Cortegada, Ourense, España

01_9455.jpg
A22 Highway viaducts. Stretch Lagos-Lagoa-Alcantarilha

Algarve, Portugal

solopisadas_10148.jpg
AP-9 Ferrol viaduct

Ferrol, La Coruña, España

elche_croquis_5762.jpg
Elche Suspension Bridge

Alicante, España

_mg_4924_6825.jpg
Bridges over the River Sil

Autovía del Noroeste A6 en Ponferrada, España

web_7181.jpg
Puerta de Hierro viaducts

Madrid, España

javier_gamino_palomo_7879.jpg
Bridge over the Alberche River

El Tiemblo, Avila, España

aerea_5_web_7334.jpg
Picado Bridge I

Algar, Cádiz, España

jose_cerezo_7361.jpg
Picado Bridge II

Cádiz, España

dji_0347_fly_7944.jpg
Arch Bridge over the Júcar river

Alzira, Valencia, España

f1_504.jpg
Bridge over the Cavalls gorge

dibujos_7904.jpg
Bridge over Torrent ravine

La Huerta de Valencia, Valencia, España

f1_500.jpg
La Zarzuela interchange bridges

Madrid, España

foto_ps_0216_9898.jpg
Structures of the Ávila-Salamanca highway. Peñalba section

Ávila, España